₹ 20700000

-

₹ 25600000

Features
Location

Navi Peth, Pune

Description

Nirman Anamika, a residential project located in the heart of Navi Peth, is set to redefine the concept of luxurious living in Pune. Strategically situated at a distance of 0.5 km from Sinhagad Road, this property offers easy access to major commercial and entertainment hubs.

This meticulously designed project boasts an impressive array of amenities, including kids play areas, power backup, 24x7 security, a normal park, and indoor games. The residents of Nirman Anamika can also enjoy the peace of mind that comes with a well-maintained environment, thanks to the carefully planned green spaces throughout the project. Whether you re looking for a home that combines comfort and convenience or a space to relax and unwind, Nirman Anamika has something for everyone.

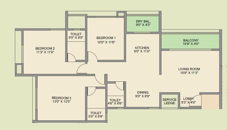
The residences at Nirman Anamika are designed to provide the ultimate living experience. Each unit is crafted with premium materials and finishes, including oil-bound distemper walls and vitrified tiles flooring in the master bedroom. With options ranging from 798 sq. ft. to 1053 sq. ft., you can choose the perfect space that suits your lifestyle and needs.

Available Unit Options

The following table outlines the available unit options at Nirman Anamika:

Area (Sq. Ft.) Price (Rs.)
2 BHK Apartment 798 On Request
3 BHK Apartment 912 On Request
3 BHK Apartment 1053 On Request
Nearby Landmarks

The residential property is strategically located near several notable landmarks, providing residents with easy access to essential amenities and services. These landmarks not only enhance the quality of life for residents but also offer a unique blend of convenience and comfort.

  • Vasanthrao Vaidya Primary School is just 0.20 km away, making it an ideal choice for families with children.
  • Indian Serological Institute Blood Bank is 0.18 km away, ensuring timely medical attention in case of an emergency.
  • Garware College Metro Station is 0.77 km away, providing a convenient connection to the city.
  • The Oakwood Hotel is 1.25 km away, perfect for guests and visitors.
  • R Deccan Mall is 1.13 km away, offering a range of shopping and dining options.
  • Hirabaug Business Center is 1.52 km away, offering a hub for business and entrepreneurship.
View More
Overview
  • ID: 2297
  • Type: House
  • Garages: 1
  • Land Size: 2,000 SqFt
  • Year Built: 2024
Property Details
ID:
#1234
Beds
7.328
Price
$7,500
Year built
2024
Size
150 sqft
Type
Villa
Rooms
9
Status
For sale
Baths
3
Garage
1
Amenities and features
  • Kids' Play Areas / Sand Pits
  • Power Backup
  • Treated Water Supply
  • 24*7 Water Supply
  • Lift
  • 24 x 7 Security
  • Normal Park / Central Green
  • Indoor Games
What’s nearby?

Explore nearby amenities to precisely locate your property and identify surrounding conveniences, providing a comprehensive overview of the living environment and the property's convenience.

  • School: 0.7 km
  • University: 1.3 km
  • Grocery center: 0.6 km
  • Market: 1.1 km
  • Hospital: 0.4 km
  • Metro station: 1.8 km
  • Gym, wellness: 1.3 km
  • River: 2.1 km
Guest reviews
  • avatar
    Floyd Miles

    August 13, 2024

    It's really easy to use and it is exactly what I am looking for. A lot of good looking templates & it's highly customizable. Live support is helpful, solved my issue in no time.

    Useful
    Not helpful
  • avatar
    Kristin Watson

    August 13, 2024

    It's really easy to use and it is exactly what I am looking for. A lot of good looking templates & it's highly customizable. Live support is helpful, solved my issue in no time.

    Useful
    Not helpful
  • avatar
    Darrell Steward

    August 13, 2024

    It's really easy to use and it is exactly what I am looking for. A lot of good looking templates & it's highly customizable. Live support is helpful, solved my issue in no time.

    Useful
    Not helpful
Leave A comment

Your email address will not be published. Required fields are marked *

Contact Sellers
avatar
Shara Conner
Why Choose Us?
  • Secure Booking
  • Best Price Guarantee
  • Easy Booking Process
  • Available Support 24/7