₹ 2400000

-

₹ 6147000

Features
Location

Moshi, Pune

Description

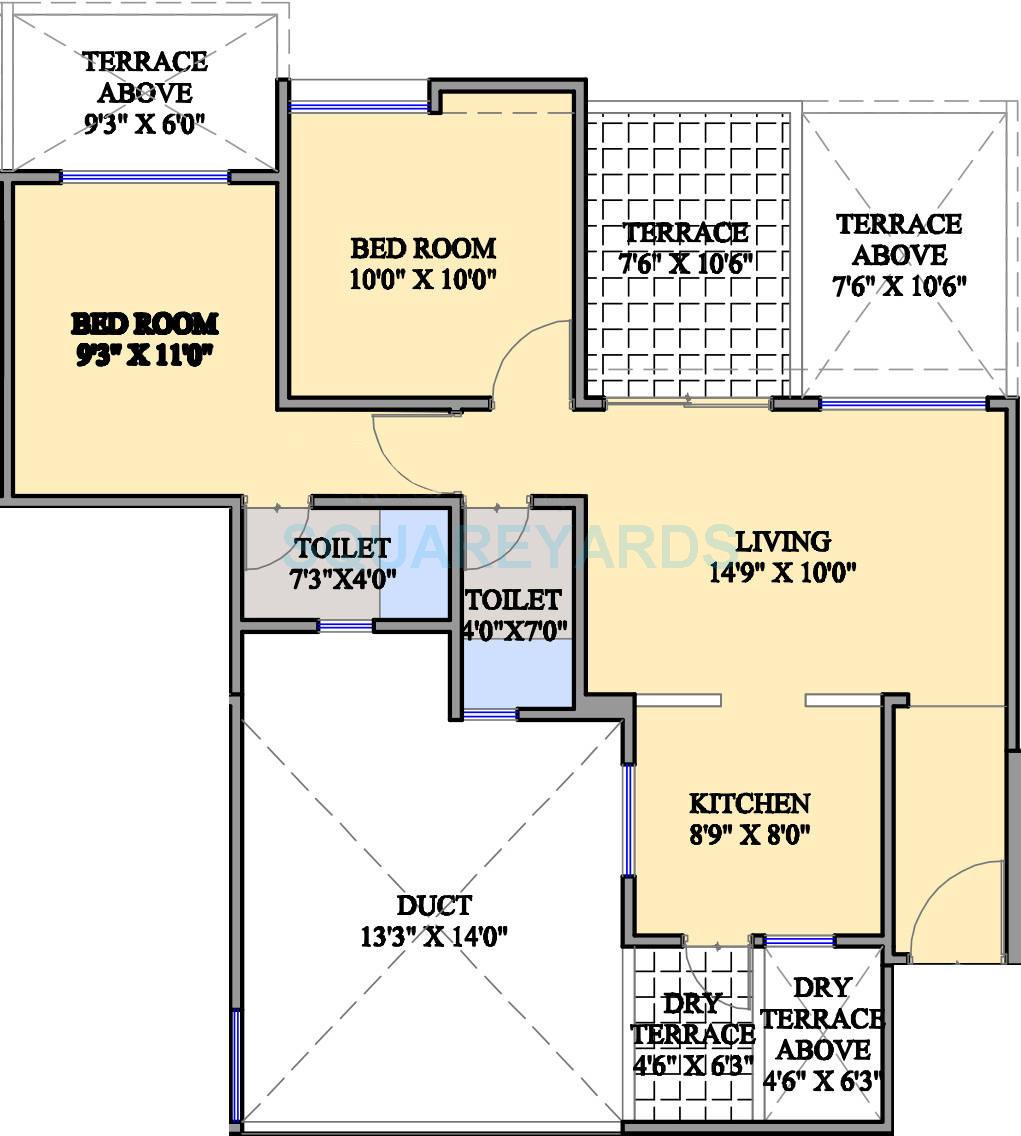
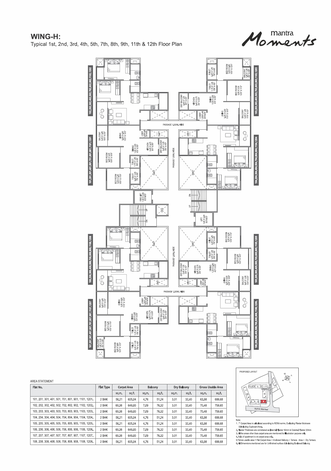
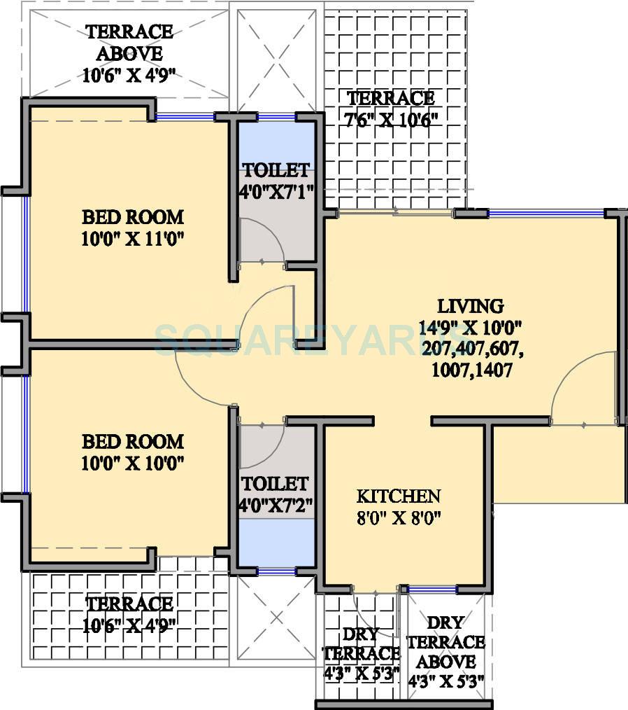
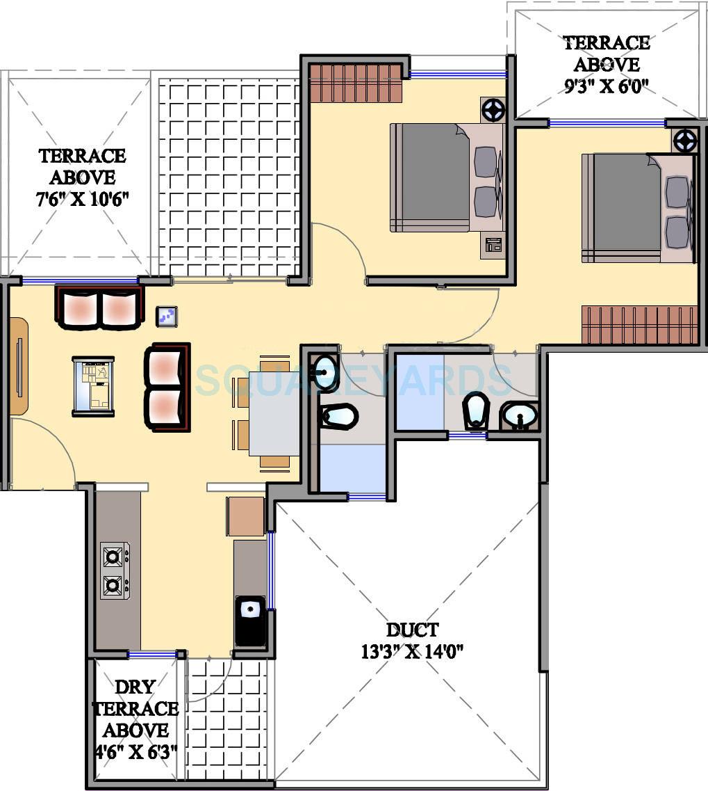
Mantra Moments is an a beautiful Project by Mantra Properties who are one of the renowned developers in Pune. It is located in Moshi, Pimpri Chinchwad PCMC and well connected by major road(s) like Pune Nashik Road, Dehu PhataMosi, Spine Road. Mantra Moments is spread across 8.16 acre. The Project has 888 Units. The status of the Project is Partially Ready To Move. The flat units on sale are available in various configurations like 1 BHK Flats at a minimum price of Rs 24.00 L and maximum price of Rs 25.10 L with Property Size ranging from 348 Sqft to 364 Sqft, 2 BHK Flats at a minimum price of Rs 29.00 L and maximum price of Rs 48.85 L with Property Size ranging from 421 Sqft to 708 Sqft, 3 BHK Flats at a minimum price of Rs 59.40 L and maximum price of Rs 61.47 L with Property Size ranging from 861 Sqft to 891 Sqft.

View More
Overview
  • ID: 2297
  • Type: House
  • Garages: 1
  • Land Size: 2,000 SqFt
  • Year Built: 2024
Property Details
ID:
#1234
Beds
7.328
Price
$7,500
Year built
2024
Size
150 sqft
Type
Villa
Rooms
9
Status
For sale
Baths
3
Garage
1
Amenities and features
  • Gymnasium
  • Swimming Pool
  • Badminton Court(s)
  • Tennis Court(s)
  • Kids' Play Areas / Sand Pits
  • Basketball
  • Yoga Areas
  • Jogging / Cycle Track
  • Table Tennis
  • Snooker/Pool/Billiards
  • Power Backup
  • Treated Water Supply
  • 24*7 Water Supply
  • Lift
  • 24 x 7 Security
  • CCTV / Video Surveillance
  • Fire Fighting Systems
  • Intercom Facility
  • Party Hall
  • Clubhouse
  • Indoor Games
  • Rain Water Harvesting
  • Sewage Treatment Plant
  • Large Green Area
What’s nearby?

Explore nearby amenities to precisely locate your property and identify surrounding conveniences, providing a comprehensive overview of the living environment and the property's convenience.

  • School: 0.7 km
  • University: 1.3 km
  • Grocery center: 0.6 km
  • Market: 1.1 km
  • Hospital: 0.4 km
  • Metro station: 1.8 km
  • Gym, wellness: 1.3 km
  • River: 2.1 km
Guest reviews
  • avatar
    Floyd Miles

    August 13, 2024

    It's really easy to use and it is exactly what I am looking for. A lot of good looking templates & it's highly customizable. Live support is helpful, solved my issue in no time.

    Useful
    Not helpful
  • avatar
    Kristin Watson

    August 13, 2024

    It's really easy to use and it is exactly what I am looking for. A lot of good looking templates & it's highly customizable. Live support is helpful, solved my issue in no time.

    Useful
    Not helpful
  • avatar
    Darrell Steward

    August 13, 2024

    It's really easy to use and it is exactly what I am looking for. A lot of good looking templates & it's highly customizable. Live support is helpful, solved my issue in no time.

    Useful
    Not helpful
Leave A comment

Your email address will not be published. Required fields are marked *

Contact Sellers
avatar
Shara Conner
Why Choose Us?
  • Secure Booking
  • Best Price Guarantee
  • Easy Booking Process
  • Available Support 24/7