₹ 13899999

-

₹ 19000000

Features
Location

Shukrawar Peth, Pune

Description

Lagoo Anand, situated in the heart of Shukrawar Peth, offers a perfect blend of luxury and convenience. The project is strategically located close to Karve Road and Kondhwa Road, making it an ideal residential option for those who want to be connected to the city s commercial and entertainment hubs.

The apartments at Lagoo Anand are designed to provide a comfortable and luxurious living experience, with beautifully landscaped surroundings and top-notch amenities. The project boasts of power backup, ensuring that you can live without any interruptions. Additionally, the kids play areas and sand pits provide a safe and engaging environment for your little ones.

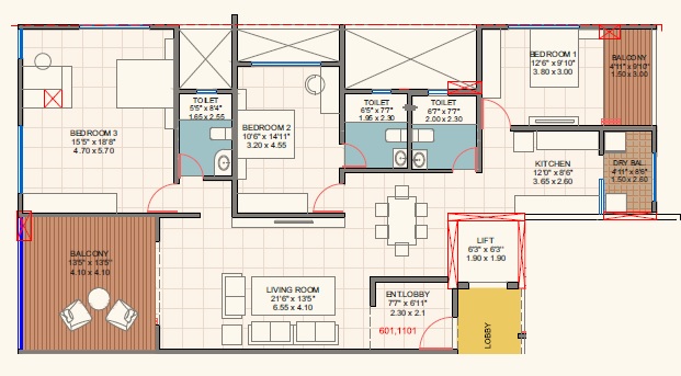
With its stunning architecture and meticulous attention to detail, Lagoo Anand is a haven for those seeking a peaceful retreat from the hustle and bustle of city life. Our 3 BHK apartments, available in areas ranging from 2435 to 2469 Sq. Ft., offer the perfect blend of comfort, space, and luxury. The prices for these units are available on request.

Available Unit Options

The following table outlines the available unit options at Lagoo Anand:

Unit Type Area (Sq. Ft.) Price (Rs.)
3 BHK Apartment 2435 On Request
3 BHK Apartment 2469 On Request
Nearby Landmarks

This prestigious real estate project is situated near numerous notable landmarks, providing residents with unparalleled convenience and accessibility to a range of amenities, services, and attractions.

  • School: Samaj Bhushan Baburao Alias Appasaheb Jedhe Arts, Commerce and Science College is 0.67 km away, making it an ideal location for parents with children.
  • Hospital: Gokhale Hospital is just 0.25 km away, ensuring timely medical attention in case of an emergency.
  • Jawaharlal Nehru Stadium is 0.16 km away, making it an excellent location for residents who appreciate sports and events.
  • Hotel: Hotel Pranav is 0.47 km away, perfect for guests and visitors.
  • Shopping Center: Mahalaxmi Metro Square is 1.64 km away, offering a range of shopping and dining options.
  • Business Hub: Hirabaug Business Center is 0.34 km away, providing a hub for entrepreneurs and professionals.
  • Govt. Registered Recent Transactions

    According to the latest government-registered data, the current real estate market is witnessing a single government-registered sales transaction with a gross sales value of 2 Cr. Notably, this sales transaction has been recorded over the past year, indicating a steady pace of activity in the market. The current rate for the property in question has been pegged at 14,687, reflecting a positive price movement of 0 over the same period. This development provides valuable insights into the market dynamics and trends in the area, making it essential for investors and property buyers to stay informed.

View More
Overview
  • ID: 2297
  • Type: House
  • Garages: 1
  • Land Size: 2,000 SqFt
  • Year Built: 2024
Property Details
ID:
#1234
Beds
7.328
Price
$7,500
Year built
2024
Size
150 sqft
Type
Villa
Rooms
9
Status
For sale
Baths
3
Garage
1
Amenities and features
  • Kids' Play Areas / Sand Pits
  • Yoga Areas
  • Jogging / Cycle Track
  • Power Backup
  • Treated Water Supply
  • 24*7 Water Supply
  • 24 x 7 Security
  • Indoor Games
What’s nearby?

Explore nearby amenities to precisely locate your property and identify surrounding conveniences, providing a comprehensive overview of the living environment and the property's convenience.

  • School: 0.7 km
  • University: 1.3 km
  • Grocery center: 0.6 km
  • Market: 1.1 km
  • Hospital: 0.4 km
  • Metro station: 1.8 km
  • Gym, wellness: 1.3 km
  • River: 2.1 km
Guest reviews
  • avatar
    Floyd Miles

    August 13, 2024

    It's really easy to use and it is exactly what I am looking for. A lot of good looking templates & it's highly customizable. Live support is helpful, solved my issue in no time.

    Useful
    Not helpful
  • avatar
    Kristin Watson

    August 13, 2024

    It's really easy to use and it is exactly what I am looking for. A lot of good looking templates & it's highly customizable. Live support is helpful, solved my issue in no time.

    Useful
    Not helpful
  • avatar
    Darrell Steward

    August 13, 2024

    It's really easy to use and it is exactly what I am looking for. A lot of good looking templates & it's highly customizable. Live support is helpful, solved my issue in no time.

    Useful
    Not helpful
Leave A comment

Your email address will not be published. Required fields are marked *

Contact Sellers
avatar
Shara Conner
Why Choose Us?
  • Secure Booking
  • Best Price Guarantee
  • Easy Booking Process
  • Available Support 24/7