₹ 15800000

-

₹ 32300000

Features
Location

Mahalunge, Pune

Description

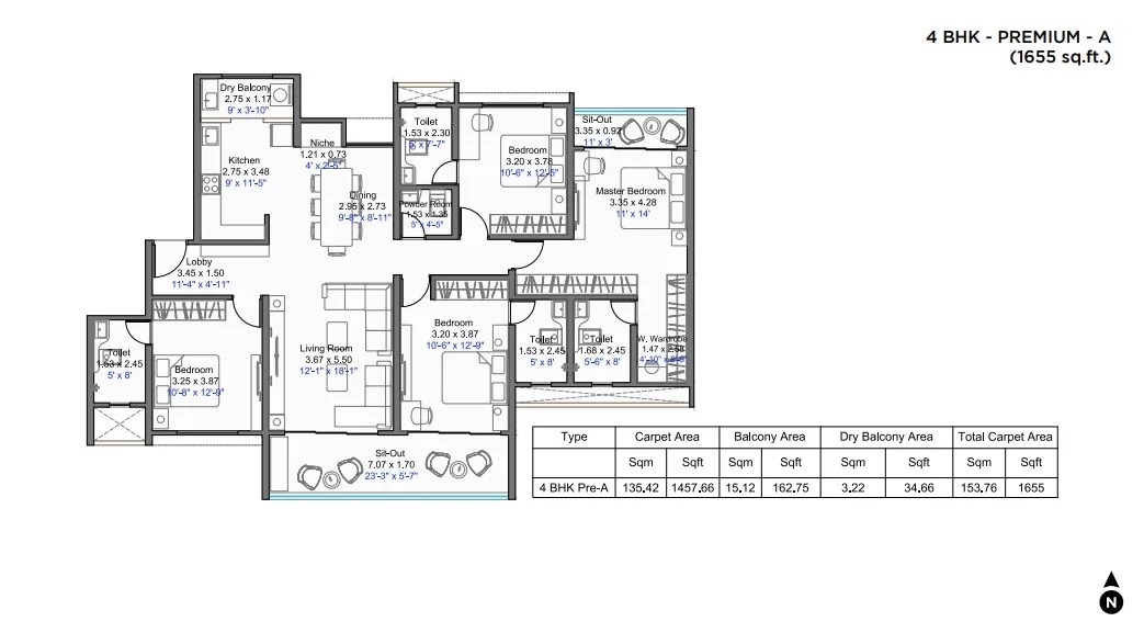
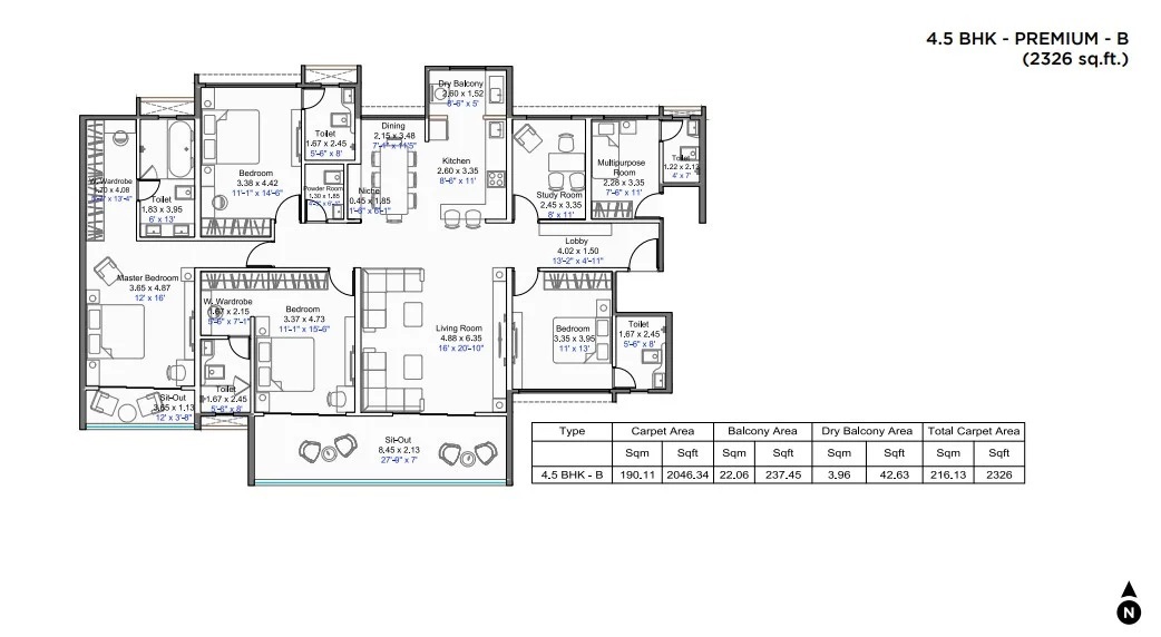
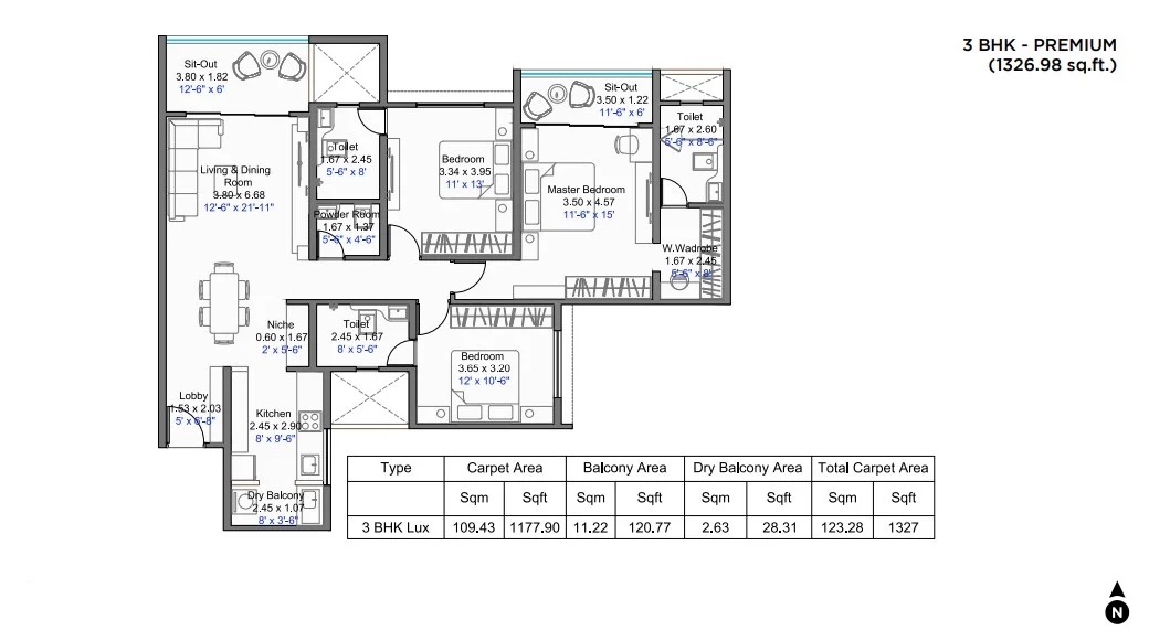
Spread across a sprawling 655-2326 Sq.ft, Kohinoor Satori in Mahalunge offers homes with expansive wrap-around sun decks, high floor-to-ceiling heights, and advanced home automation systems for seamless convenience. Thoughtful architecture and premium materials create an ambience of elegance, making the project a sanctuary for those who appreciate refined living.

The development's strategic location in New Baner offers excellent connectivity to IT hubs like Hinjewadi, reputed schools, healthcare centres, and retail destinations, ensuring a convenient and well-rounded lifestyle. Developed by the trusted Kohinoor Group, with over 40 years of experience and a reputation for quality and reliability, Kohinoor Satori promises a sophisticated, serene, and future-ready living experience.

Why Invest in Kohinoor Satori?

  • Location Advantage: Located in Mahalunge, this project is in a rapidly flourishing neighbourhood with excellent connectivity and seamless access to key destinations in Pune. It is near major IT hubs, including Hinjewadi IT Park and Amar Tech Park, making it ideal for professionals.
  • Premium Amenities: Kohinoor Satori offers an impressive range of world-class amenities spread across four signature parks: North Park, Grand Park, South Park, Nature Park, and two premium clubhouses.
  • Sustainability and Modern Living: The project integrates eco-friendly features and prioritises quality craftp, demonstrating its commitment to sustainable modern living.
  • High Appreciation Potential: Mahalunge is one of the most sought-after residential hubs. Its proximity to employment centres like Hinjewadi IT Park and upcoming infrastructure projects positions it as a high-potential investment area. The demand for premium housing in this region is rising, making it an attractive option for investors looking for long-term appreciation.

What is the Address of the Project?

The address of the project is Baner, Mahalunge, Pune, Maharashtra. The PIN code of the area is 411045.

View More
Overview
  • ID: 2297
  • Type: House
  • Garages: 1
  • Land Size: 2,000 SqFt
  • Year Built: 2024
Property Details
ID:
#1234
Beds
7.328
Price
$7,500
Year built
2024
Size
150 sqft
Type
Villa
Rooms
9
Status
For sale
Baths
3
Garage
1
Amenities and features
  • Gymnasium
  • Swimming Pool
  • Kids' Pool
  • Badminton Court(s)
  • Squash Court
  • Cricket
  • Kids' Play Areas / Sand Pits
  • Basketball
  • Yoga Areas
  • Jogging / Cycle Track
  • Table Tennis
  • Snooker/Pool/Billiards
  • Heated Swimming Pool
  • Power Backup
  • AC Waiting Lobby
  • Treated Water Supply
  • Pet Area
  • 24*7 Water Supply
  • Lift
  • Party Lawn
  • 24 x 7 Security
  • CCTV / Video Surveillance
  • Fire Fighting Systems
  • Intercom Facility
  • Dance Room
  • Mini Theatre
  • Party Hall
  • Clubhouse
  • Indoor Games
  • Bowling
  • Conference Room
  • Jacuzzi
  • Food Court
  • Senior Citizen Area
  • Rain Water Harvesting
  • Sewage Treatment Plant
  • Large Green Area
What’s nearby?

Explore nearby amenities to precisely locate your property and identify surrounding conveniences, providing a comprehensive overview of the living environment and the property's convenience.

  • School: 0.7 km
  • University: 1.3 km
  • Grocery center: 0.6 km
  • Market: 1.1 km
  • Hospital: 0.4 km
  • Metro station: 1.8 km
  • Gym, wellness: 1.3 km
  • River: 2.1 km
Guest reviews
  • avatar
    Floyd Miles

    August 13, 2024

    It's really easy to use and it is exactly what I am looking for. A lot of good looking templates & it's highly customizable. Live support is helpful, solved my issue in no time.

    Useful
    Not helpful
  • avatar
    Kristin Watson

    August 13, 2024

    It's really easy to use and it is exactly what I am looking for. A lot of good looking templates & it's highly customizable. Live support is helpful, solved my issue in no time.

    Useful
    Not helpful
  • avatar
    Darrell Steward

    August 13, 2024

    It's really easy to use and it is exactly what I am looking for. A lot of good looking templates & it's highly customizable. Live support is helpful, solved my issue in no time.

    Useful
    Not helpful
Leave A comment

Your email address will not be published. Required fields are marked *

Contact Sellers
avatar
Shara Conner
Why Choose Us?
  • Secure Booking
  • Best Price Guarantee
  • Easy Booking Process
  • Available Support 24/7