₹ 17000000

-

₹ 22500000

Features
Location

Andheri East, Mumbai

Description

Gurunam Holy Palace, located in the prime suburb of Andheri East, is a coveted residential destination that offers a serene ambiance for a peaceful living experience. The property is strategically located near JogeshwariVikroli Link Road and Western Express Highway, making it an ideal choice for those seeking easy connectivity to various parts of the city. With its prime location and modern amenities, this project is sure to captivate the hearts of homebuyers.

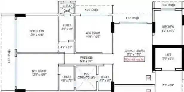
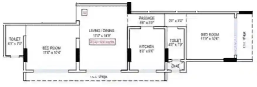
The well-appointed apartments at Gurunam Holy Palace are designed to provide perfect comfort and sophistication. The 2 BHK and 3 BHK apartments boast of spacious areas of 600 Sq. Ft. and 825 Sq. Ft. respectively, offering ample space for a growing family. With its emphasis on quality and comfort, the project offers top-class facilities including power backup and kids play areas/sand pits, making it an ideal choice for families.

For those looking to invest in a property, Gurunam Holy Palace offers a golden opportunity. The project is RERA registered (P51800027771) and offers a range of unit options to suit different budgets and preferences. Whether you re a first-time buyer or a seasoned investor, Gurunam Holy Palace is an ideal choice for those seeking a safe and profitable investment.

Available Unit Options

The following table outlines the available unit options at Gurunam Holy Palace:

Unit Type Area (Sq. Ft.) Price (Rs.)
2 BHK Apartment 600 1.70 Cr
3 BHK Apartment 825 2.25 Cr
Nearby Landmarks

This charming residential property is nestled among a plethora of notable landmarks, providing residents with a convenient and comfortable lifestyle. These landmarks not only offer a sense of community but also ensure easy access to essential amenities and services.

  • K B Patil International School is just 0.05 km away, an excellent option for families with children.
  • Indu Maternity Surgical Nursing Home is 0.33 km away, providing timely medical attention.
  • Jogeshwari Caves is 1.11 km away, allowing residents to connect with the city and explore its rich history.
  • Nasarin Hotel is 0.78 km away, ideal for guests and visitors.
  • Oasis Shopping Mall is 1.81 km away, offering a range of shopping and dining options.
  • Hubtown Viva is 0.79 km away, serving as a hub for business and entrepreneurship.
  • Govt. Registered Recent Transactions

    The real estate market has demonstrated stability in terms of rental rates over the past year, with a consistent rental rate of 67.682 recorded across all aggregations. For a 3-month, 6-month, and 1-year span, the rental rate has remained unchanged, signaling a steady demand for properties in the market. Notably, the current rent rate has also shown no significant fluctuations, settling at 27,803 across all aggregations.

View More
Overview
  • ID: 2297
  • Type: House
  • Garages: 1
  • Land Size: 2,000 SqFt
  • Year Built: 2024
Property Details
ID:
#1234
Beds
7.328
Price
$7,500
Year built
2024
Size
150 sqft
Type
Villa
Rooms
9
Status
For sale
Baths
3
Garage
1
Amenities and features
  • Kids' Play Areas / Sand Pits
  • Power Backup
  • Treated Water Supply
  • 24*7 Water Supply
  • Lift
  • 24 x 7 Security
  • Normal Park / Central Green
  • Indoor Games
What’s nearby?

Explore nearby amenities to precisely locate your property and identify surrounding conveniences, providing a comprehensive overview of the living environment and the property's convenience.

  • School: 0.7 km
  • University: 1.3 km
  • Grocery center: 0.6 km
  • Market: 1.1 km
  • Hospital: 0.4 km
  • Metro station: 1.8 km
  • Gym, wellness: 1.3 km
  • River: 2.1 km
Guest reviews
  • avatar
    Floyd Miles

    August 13, 2024

    It's really easy to use and it is exactly what I am looking for. A lot of good looking templates & it's highly customizable. Live support is helpful, solved my issue in no time.

    Useful
    Not helpful
  • avatar
    Kristin Watson

    August 13, 2024

    It's really easy to use and it is exactly what I am looking for. A lot of good looking templates & it's highly customizable. Live support is helpful, solved my issue in no time.

    Useful
    Not helpful
  • avatar
    Darrell Steward

    August 13, 2024

    It's really easy to use and it is exactly what I am looking for. A lot of good looking templates & it's highly customizable. Live support is helpful, solved my issue in no time.

    Useful
    Not helpful
Leave A comment

Your email address will not be published. Required fields are marked *

Contact Sellers
avatar
Shara Conner
Why Choose Us?
  • Secure Booking
  • Best Price Guarantee
  • Easy Booking Process
  • Available Support 24/7