₹ 3277000

-

₹ 17700000

Features
Location

Kothrud, Pune

Description

Introducing Ashwamedh Ratnaprabha, a luxurious residential project located in the heart of Kothrud, Pune. This prime location is well-connected to major roads such as Paud Road and University Road, making it an ideal choice for those who want to be close to the city educational institutions, healthcare facilities, and other essential amenities.

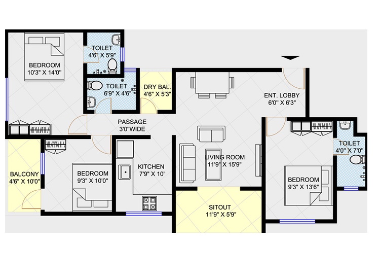
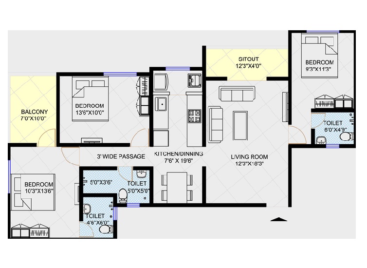
Ashwamedh Ratnaprabha offers a range of 1, 2, and 3 BHK apartments, carefully designed to provide maximum comfort and spaces. The project features impressive specifications, including Master Bedroom walls finished with oil-bound distemper, ensuring a premium living experience. Moreover, the project offers excellent convenience amenities like power backup, ensuring that you never compromise on the quality of your living.

But that not all! Ashwamedh Ratnaprabha also features world-class sports and leisure facilities, such as kids play areas and sand pits, providing a safe and fun environment for your little ones. With a range of unit options available, from 336 Sq. Ft. to 882 Sq. Ft., youre sure to find the perfect fit for your needs. Dont miss this opportunity to own a stunning home at Ashwamedh Ratnaprabha and experience the best of living in Kothrud!

Available Unit Options

The following table outlines the available unit options at Ashwamedh Ratnaprabha:

Unit Type Area (Sq. Ft.)
1 BHK Apartment 336 Sq. Ft.
1 BHK Apartment 482 Sq. Ft.
2 BHK Apartment 532 Sq. Ft.
2 BHK Apartment 636 Sq. Ft.
3 BHK Apartment 698 Sq. Ft.
3 BHK Apartment 882 Sq. Ft.
Units (Size: 163 Sq. Ft.)
Nearby Landmarks

The residential property is surrounded by several iconic landmarks that provide residents with easy access to essential amenities and services, offering a comfortable and convenient living experience.

    Listing Information

    In resale we have 1 property available ranging from 3 BHK having price from 2.14 CR.

    Listing Type Total Listings Unit Type Range Price Range
    Resale 1 3 BHK 2.14 CR
    Govt. Registered Recent Transactions

    According to recent government-registered data, the residential property market has witnessed significant activity over the past few months. Within the 3-month aggregation, a single sales transaction has been recorded, accompanied by a gross sales value of 6,500,000, indicating a stable market. Over the 6-month period, the number of sales transactions has risen to 8, with a cumulative gross sales value of 6 Cr, showing a moderate pace of sales. Meanwhile, the 1-year aggregation has seen 9 sales transactions, with a combined gross sales value of 7 Cr, indicating a strong market momentum. Notably, the rental rate has remained stable across all aggregations, currently standing at 15,148, while price movements have been minimal, at best.

View More
Overview
  • ID: 2297
  • Type: House
  • Garages: 1
  • Land Size: 2,000 SqFt
  • Year Built: 2024
Property Details
ID:
#1234
Beds
7.328
Price
$7,500
Year built
2024
Size
150 sqft
Type
Villa
Rooms
9
Status
For sale
Baths
3
Garage
1
Amenities and features
  • Gymnasium
  • Kids' Play Areas / Sand Pits
  • Yoga Areas
  • Jogging / Cycle Track
  • Power Backup
  • Treated Water Supply
  • 24*7 Water Supply
  • Lift
  • 24 x 7 Security
  • CCTV / Video Surveillance
  • Fire Fighting Systems
  • Intercom Facility
  • Video Phone
  • Normal Park / Central Green
  • Indoor Games
  • Senior Citizen Area
What’s nearby?

Explore nearby amenities to precisely locate your property and identify surrounding conveniences, providing a comprehensive overview of the living environment and the property's convenience.

  • School: 0.7 km
  • University: 1.3 km
  • Grocery center: 0.6 km
  • Market: 1.1 km
  • Hospital: 0.4 km
  • Metro station: 1.8 km
  • Gym, wellness: 1.3 km
  • River: 2.1 km
Guest reviews
  • avatar
    Floyd Miles

    August 13, 2024

    It's really easy to use and it is exactly what I am looking for. A lot of good looking templates & it's highly customizable. Live support is helpful, solved my issue in no time.

    Useful
    Not helpful
  • avatar
    Kristin Watson

    August 13, 2024

    It's really easy to use and it is exactly what I am looking for. A lot of good looking templates & it's highly customizable. Live support is helpful, solved my issue in no time.

    Useful
    Not helpful
  • avatar
    Darrell Steward

    August 13, 2024

    It's really easy to use and it is exactly what I am looking for. A lot of good looking templates & it's highly customizable. Live support is helpful, solved my issue in no time.

    Useful
    Not helpful
Leave A comment

Your email address will not be published. Required fields are marked *

Contact Sellers
avatar
Shara Conner
Why Choose Us?
  • Secure Booking
  • Best Price Guarantee
  • Easy Booking Process
  • Available Support 24/7